YOLO!ひーやんです。
今回は、6棟目企画について、プラン検討から着工、そして工事中のすったもんだについて書いていきたいと思います。今回も色々ありました・・・
足立区ローカルルールの洗礼
買付の翌日、仲介担当さんから「仮測量図ができましたよー」と早速データが送られてきました。よしよし、これを元にプラン図面の作図にとりかかるぞーと意気込んでいたところで、ふと思い出しました。
( ……足立区って、あの条例があったよな? )
以前、Xで見かけた、わん一級建築士のこのポストです
今回の建築物は200㎡を超える「木三共(木造3階建て共同住宅)」です。
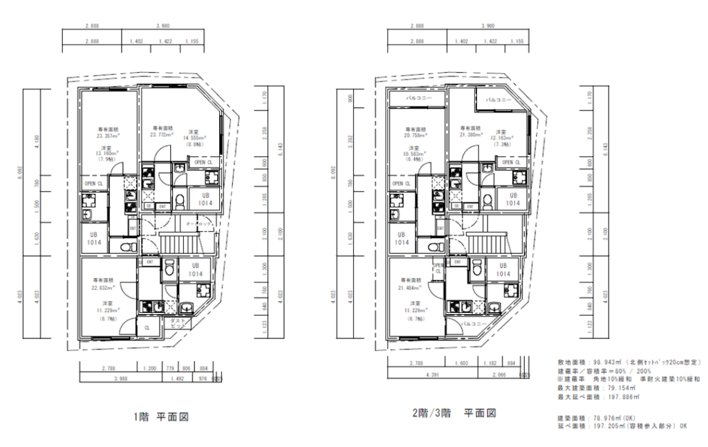
各部屋の専有面積を少しでも広く確保するため、私はバルコニーをつけず、内階段の踊り場部分に2㎡の開口部を設けるプランを考えていました。
というのも、200㎡超の木三共(準耐火建築物)でバルコニーが不要になる条件として、以下のような緩和ルールがるのです。
ただ、足立区には「道路の中心から5m以上離れないと、住戸の間を挟む内階段の踊り場に2㎡の開口部を設けても『開放性のある階段』とはみなさない」という、「なんこれ?」と言いたくなるような独自の規制が存在するんです。
念のため、わんさん(わん一級建築士)に確認してみました。
足立区のこの条例って、こういう解釈で合ってますよね?
そうですそうです!足立区で200㎡超え、かつ内廊下・内階段タイプのプランにする場合、バルコニーは必須になりますね
ですよねー
2階・3階には避難用バルコニーの設置も必須。色々こねくり回しましたが、どうやら回避不可の模様。
腹を括って、バルコニー付きのプランを作成し、わんさんにチェックしてもらいました。バルコニー付きプランを検討するのは初めてだったのですが、
避難用バルコニーは『有効』で2㎡必要ですよ
といった細かい点までしっかりアドバイスをもらえました。
その後、CADでシコシコと図面を作成していき、完成したDIYプランがこちらです。

その後、両吉工務店の建築士さんにも図面をチェックしていただき、細かい微修正を加えてもらいましたが、ほぼほぼ私が作成したDIYプランで進めてもらえることになりました。
融資付けと土地決済
プランも固まり、両吉工務店からの概算見積もりも取得できたところで、いざ融資の打診へ。
今回持ち込んだのは、「幻の6棟目」でハシゴを外される原因となったハザードマップ問題で苦い経験をした有力な金融機関。その反省を活かし、今回は事前に本部も含めてハザードの確認を行い、「問題なし!」の裏付けを取ってから進めました。おかげで今回はすんなり本部確認の上での内諾がおりました。
条件は「90%融資、金利1.65%、期間35年」。金利アップしているこのご時世を考えると、かなりいい感じの条件を引き出せました。
(竣工時には1.90%になりましたが(ToT))
売主さんはご高齢なご夫妻。売買契約の条件を詰めていく中で、売主さんからは仲介さん経由で一つだけ条件の連絡がありました。
元々は古家付きで売るつもりだったので、アパート建築で地中を掘り起こすなら、『何が出てきても買主さんの方で負担してほしい』とのことです
地中埋設物(ガラ)のことですね。この辺りなら20万円~30万円程度のガラは出る覚悟はあるので、それが契約の条件なら問題ないです。
無事に売買契約を終え、融資の本承認もゲット!晴れて土地決済を迎えることができました。

地中からの刺客!巨大RC浄化槽の登場
確認申請を進めている裏で、解体工事も同時進行させていました。
お願いしたのは、2棟目企画からずっとお世話になっている解体業者さん。毎回相見積もりを取るんですが、ハズレ値(異常に安くて悪い噂が出る業者)を除けば、結局ここが一番割安で信頼できるんですよね。
そんな解体工事の最中、現場担当者から一本の電話が。
ひーやんさん、すんごいでっかいRCの浄化槽が出てきました……。土地の売主さんに確認してもらえますか?

ひぇーー……!!
ただ、今回の契約は契約不適合免責なんですよね……。ひとまず、念のため写真はしっかり撮っておいてもらっていいですか?
後日、業者から上がってきた撤去見積もりはなんと90万円。
まぁ契約上仕方ないけど、せめてブログやXのネタにして供養しよう……と本件について、ポストしました。
すると、魔界のお友達であるスライムさんから即座にDMが!
競合した際に Xのポスト見ました!物件状況報告書に地中埋設物の申告義務があるはずですが、どう記載されてますか?
えーっと……こちらです

売主さんがそこに住まれていたなら、浄化槽の存在を知っていたはずでは?古家の配置計画も浄化槽を避けて設計されているでしょうし、知らないってことはないと思いますよ
!!確かに!!ちょっと売主さんに確認してみます!
早速、仲介さん経由で売主さんに確認してもらったところ……
売主さんは『覚えていない』とおっしゃっているのですが、ひーやんさんのお気持ちもわかるので、半額は負担してもよいと言っています
おぉー!本当ですか!
実は裏で、下水道が整備された時期が焦点になると睨み、昭和50年代の足立区の広報記事(デジタル化されて公開されているもの)をすべて読み込み、下水道の配備時期を完全に把握していました。

古家が竣工したのは下水道整備された4ヶ月後。そのため、建築プラン時は浄化槽利用を前提としており、その後下水道が整備されたタイミングで浄化槽から下水道を利用するようにプラン変更し、建築工事を進め、使わなくなったRC浄化槽は埋め殺した可能性が高い……つまり、売主さんも知っている可能性は非常に高い、という裏付けまで取っていました。
ただ、これを突きつけて争うのも大変ですし、売主さんが快く「半額負担」を申し出てくれたので、それで手打ちとしました。その後、解体業者さんとも費用交渉を行い、最終的な自己負担は30万円程度に!
当初見込んでいた予算内に収めることができました。スライムさん、まいどアザまっす!
スムーズな工事過程
その後は順調に工事が進んでいきました。
両吉工務店の現場監督は両吉社長の息子さんが担当してくれているのですが、非常にフットワークが軽く、コミュニケーションも取りやすくてストレスフリー🙌
基礎工事、順調に進んでいます!
こんな感じで定期的に現場の写真を送ってくれるので、離れていても非常に安心してお任せできます。
最後のトラップ!?立ちはだかる「支線」
工事が順調に進む中、現場確認に行ってくれた建築士さんから連絡がありました。
エントランス前の『支線』なんですが、入居者の出入りの支障になりそうです
マジですか……。これって東電に相談すれば撤去してもらえますかね?」
そうですね。おそらくお金を払って撤去してもらうことになると思います
調べてみると、東電の支線撤去は費用が7万円程度、期間は3~4ヶ月かかるとのこと。
早速東電に連絡を入れると、まずは現地での立ち会いが必要とのこと。平日で私が動けなかったため、両吉建築士さんに代理で立ち会ってもらいました。すると……
……ひーやんさん、あの支線、東電じゃなくてNTTの支線でした
え……?
またまた調べてみると、電柱から支線が2本出ている場合、「低い方が通信会社、高い方が電力会社」の支線になっていることが多いんだそうです。知らなかった……。

その後、流れで両吉建築士さんがNTTへの撤去依頼から見積もり取得まで代行してくれました。本当にありがたい。。。
最終的にNTTから上がってきた見積もりはなんと20万円。たけぇーー。。。
痛い出費ではありますが、エントランスの利便性には代えられないため、やむなしで撤去工事を依頼。なんとか竣工前に撤去を間に合わせることができました。
次回は、ついに竣工した6棟目企画のお披露目記事となります!
お楽しみに!ヽ(•̀ω•́ )ゝ










